Характеристики
Описание
Купить домкрат Holmatro HJ 100 H 5 двойного действия с гидравлическим возвратом по низкой цене. Бесплатная доставка по СПб, МСК и РФ в день заказа, гарантия от 1 года, официальный сервис. Поможем выбрать, звоните: 8 962 611-24-19.
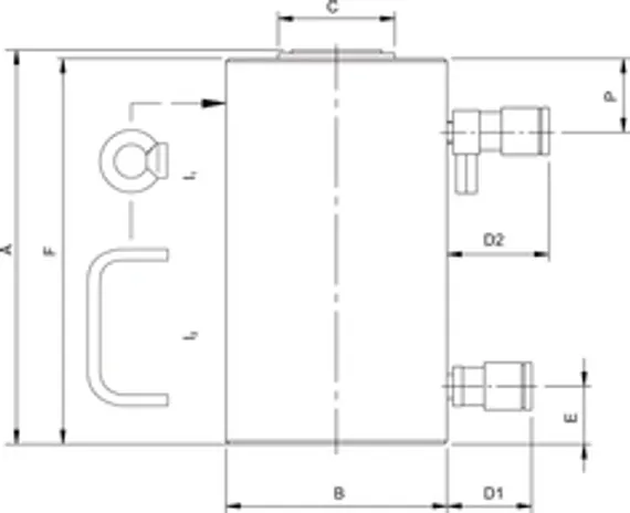
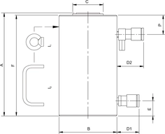
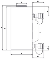
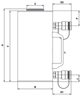
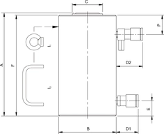
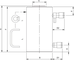
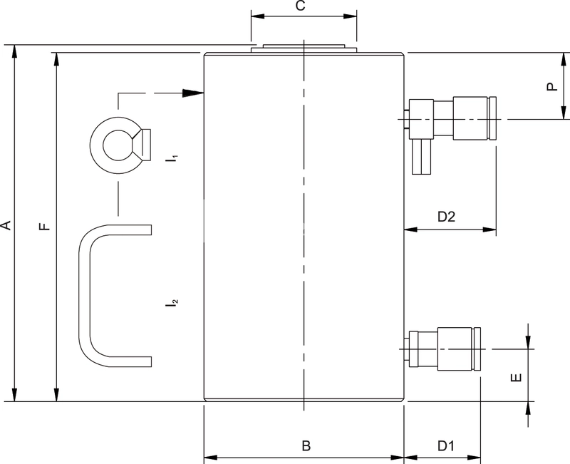
Технические характеристики
| Грузоподъемность | 100 т |
| Ход штока | 50 мм |
| Высота в закрытом положении | 170 мм |
| Нагрузка на цилиндр | 1029,3 кН / 105 т |
| Рабочее давление | 720 бар / 72 МПа |
| Эффективная площадь давления (пресс) | 143 см2 |
| Эффективная площадь давления (возврат) | 56,6 см2 |
| Объем масла (пресс) | 716 см3 |
| Объем масла (возврат) | 283 см3 |
| Тип действия | двусторонний |
| Тип возврата | гидравлический |
| Материал корпуса | сталь |
| Тип цилиндра | высокотоннажный |
| Соединение | A 118 |
| Вес | 63 кг |
| Артикул | 100.122.009 |
Комплектация
- Соединительная муфта с внутренней резьбой A 118.
- Плоская опора.






















































































