Характеристики
Описание
Купить домкрат Holmatro HHJ 12 S 5 с полым плунжером и пружинным возвратом по низкой цене. Бесплатная доставка по СПб, МСК и РФ в день заказа, гарантия от 1 года, официальный сервис. Поможем выбрать, звоните: 8 962 611-24-19.
Технические характеристики
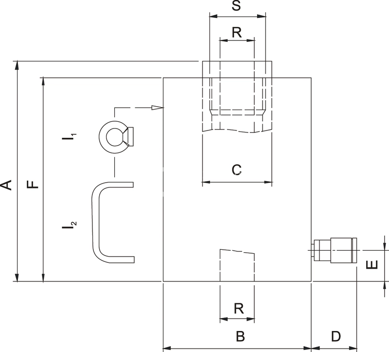
| Грузоподъемность | 12 т |
| Ход штока | 50 мм |
| Высота в закрытом положении | 156 мм |
| Нагрузка на цилиндр | 126,7 кН / 12,9 т |
| Рабочее давление | 720 бар / 72 МПа |
| Эффективная площадь давления | 17,6 см2 |
| Объем масла (эффективный) | 88 см3 |
| Тип действия | односторонний |
| Тип возврата | пружинный |
| Материал корпуса | сталь |
| Тип цилиндра | полый плунжер |
| Соединение | A 118 |
| Вес | 6,3 кг |
| Артикул | 100.111.021 |
Комплектация
- Соединительная муфта с внутренней резьбой A 118.
















































