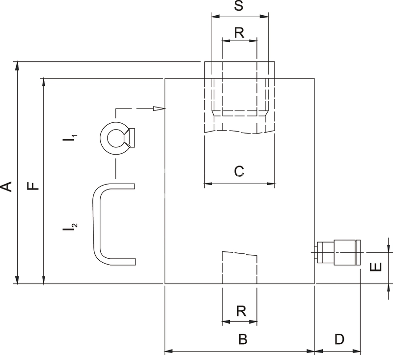
Характеристики
Описание
Купить домкрат Holmatro HHJ 20 S 5 с полым плунжером и пружинным возвратом по низкой цене. Бесплатная доставка по СПб, МСК и РФ в день заказа, гарантия от 1 года, официальный сервис. Поможем выбрать, звоните: 8 962 611-24-19.
Технические характеристики
| Грузоподъемность | 20 т |
| Ход штока | 50 мм |
| Высота в закрытом положении | 182 мм |
| Нагрузка на цилиндр | 223,9 кН / 22,8 т |
| Рабочее давление | 720 бар / 72 МПа |
| Эффективная площадь давления | 31,1 см2 |
| Объем масла (эффективный) | 156 см3 |
| Тип действия | односторонний |
| Тип возврата | пружинный |
| Материал корпуса | сталь |
| Тип цилиндра | полый плунжер |
| Соединение | A 118 |
| Вес | 8,6 кг |
| Артикул | 100.112.033 |
Комплектация
- Соединительная муфта с внутренней резьбой A 118.
- Полая опора.


















































