Характеристики
Описание
Купить домкрат Holmatro HHJ 60 S 7.5 с полым плунжером и пружинным возвратом по низкой цене. Бесплатная доставка по СПб, МСК и РФ в день заказа, гарантия от 1 года, официальный сервис. Поможем выбрать, звоните: 8 962 611-24-19.
Технические характеристики
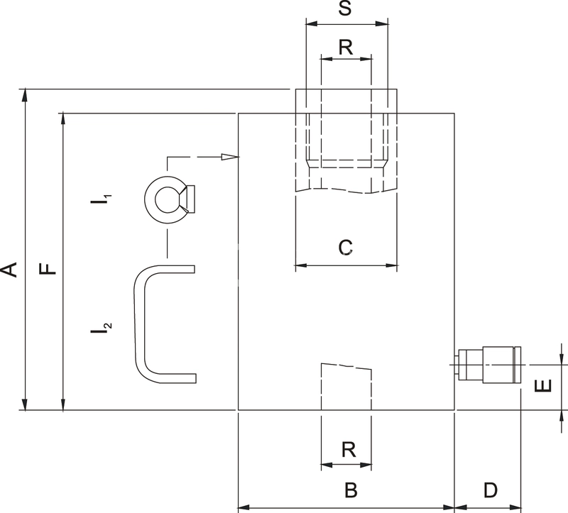
| Грузоподъемность | 60 т |
| Ход штока | 75 мм |
| Высота в закрытом положении | 272 мм |
| Нагрузка на цилиндр | 610,4 кН / 62,2 т |
| Рабочее давление | 720 бар / 72 МПа |
| Эффективная площадь давления | 84,8 см2 |
| Объем масла (эффективный) | 636 см3 |
| Тип действия | односторонний |
| Тип возврата | пружинный |
| Материал корпуса | сталь |
| Тип цилиндра | полый плунжер |
| Соединение | A 118 |
| Вес | 34,5 кг |
| Артикул | 100.112.081 |
Комплектация
- Соединительная муфта с внутренней резьбой A 118.
- Полая опора.















































